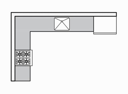
1. L-shaped layout:
This popular layout features countertops and cabinets that form an "L" shape, maximizing corner space and providing ample storage and workspace.

In an L-shaped layout, the cooking space, fridge, and sink are strategically positioned to form a functional triangle on one side of the kitchen. This arrangement ensures that the essential components are within easy reach, saving you time and effort. Adjacent walls are utilized for cabinets and drawers, providing ample storage for your kitchen essentials.
The L-shaped layout is particularly well-suited for small homes where space optimization is crucial. It maximizes the available area, allowing you to create a practical and efficient workspace. Additionally, this layout offers the possibility of incorporating a small dining table, making it a versatile solution for both cooking and dining needs.
The straight layout is particularly suitable for small studio apartments or kitchens with limited space. By consolidating everything onto one wall, this layout maximizes efficiency and optimizes the available area. It allows for easy movement and accessibility, making it convenient for daily cooking activities. This compact arrangement ensures that every inch of the kitchen is utilized effectively.
Interestingly, the straight layout is not limited to small kitchens. It can also be employed in larger kitchen spaces for different purposes. For instance, if you require ample storage or prefer a spacious walking area, this layout allows you to utilize the remaining space in the kitchen efficiently. Additionally, it provides flexibility to incorporate an island feature if desired, adding a focal point and enhancing functionality.
Next up is the U-shaped layout, which offers a generous amount of space for cooking and preparation. This layout provides ample room to move around and ensures an optimum work triangle between the refrigerator, sink, and cooking area.
The U-shaped layout is particularly beneficial for family homes where multiple cooks may be working simultaneously. With its expansive design, it allows for efficient workflow and accommodates the needs of busy kitchens. The extended countertop space provides plenty of room for meal preparation, making it easier to handle multiple cooking tasks at once.
Next in line is the parallel or galley layout, where two opposing walls take center stage in your kitchen design. This layout features the cooking space, refrigerator, and sink positioned on each wall, with a spacious and well-defined area in between. The cabinets and drawers can be intelligently placed on either or both walls, catering to your specific storage needs.
The parallel layout offers a balanced and efficient setup, allowing for easy workflow and organization. By dividing the kitchen into distinct zones, you can allocate one side for "wet" work, such as food preparation and washing, while utilizing the other side for "dry" tasks like chopping and baking. This segregation ensures optimal functionality and keeps your kitchen tasks streamlined.
The island layout takes center stage as another popular choice. It can be seamlessly incorporated into a straight or L-shaped kitchen design, especially well-suited for medium to large-sized kitchens. The island serves as a multifunctional feature, providing additional workspace and versatile options.
By integrating an island into your kitchen, you have the opportunity to create a designated dining area. Placing a dining table on the island allows for a convenient and social dining experience, making it a focal point for family gatherings or entertaining guests. The sink can be strategically positioned in the middle of the kitchen, optimizing the workflow and making it easily accessible from all sides.
The peninsula modular kitchen is a sophisticated variation of the island kitchen design. Unlike the standalone island, the peninsula is connected to a wall, creating a seamless integration between the kitchen and the surrounding space. It serves as both a seating area and a functional workspace for individuals. The peninsula is typically open on three sides, providing easy accessibility and a sense of openness.
The heart of every home lies in its kitchen, and at the core of this culinary sanctuary are the kitchen countertops, where culinary magic comes to life. In the realm of modern kitchens, modular designs reign supreme, offering a glimpse into the present and future of smart kitchen solutions. By familiarizing yourself with the fundamentals of various kitchen layouts, you gain the knowledge and insight necessary to make informed decisions when it comes to designing your own kitchen. Understanding your options empowers you to create a space that aligns perfectly with your vision and meets your specific needs.